产品概述
本单位生产的WSY型、FSY型两种型式的泵,1.WSY型泵为立式玻璃钢液下旋涡泵。2.FSY型泵为立式玻璃钢液下离心泵,该泵因伸入贮罐,贮槽的深度长短不同,设计液下深度800mm--3000mm之间任意选择。只要液体高于泵体,即可不灌液而起动送液,平盖板下设有泄漏孔,液体不会向贮罐外泄漏。
本玻璃钢泵与介质接触的零部件,系用聚乙烯醇缩丁醛改性酚醛玻璃纤维,经高温模压成型的酚醛玻璃钢制件,联接管、出液管采用半干法卷制工艺制成的酚醛玻璃钢管,叶轮轴套的装配均用酚醛胶泥和泵轴粘成一体,液下各部装配均用酚醛胶泥粘结,伸入液下全无金属与介质接触,耐腐性能绝对可靠,产品具有轻质、高强、不变形、耐温、耐腐蚀等优良性能,在防腐方面可部分替代含钼不锈钢、钛及钛合金等贵重金属。
泵在传动和旋转方向:泵通过爪型弹性联轴器由电动机直接驱动,从电动机端看泵为顺时针方向旋转。
适用范围
本玻璃钢泵广泛用于化工、石化、冶炼、染料、农药、制药、稀土、化肥等行业,在贮罐上输送不含悬浮固体颗粒,不易结晶,温度不高于100℃的各种非氧化性酸(盐酸、稀硫酸、甲酸、醋酸、丁酸)等腐蚀介质的理想设备。
性能参数
|
型号 |
流量Q |
扬程H |
转速n |
功率N |
叶轮直径D |
吸上高度 |
||
|
(m3/h) |
(L/S) |
|||||||
|
25WSY-22 |
a 型 |
2.88 |
0.80 |
22 |
2900 |
2.2 |
120 |
800 至 3000 |
|
25WSY-30 |
2.88 |
0.80 |
30 |
2900 |
3 |
120 |
||
|
40WSY-258 |
5.76 |
1.60 |
25 |
2900 |
4 |
142 |
||
|
40FSY-22 |
8.10 |
2.24 |
22 |
2900 |
3 |
140 |
||
|
40FSY-18 |
6.48 |
1.80 |
18 |
2900 |
2.2 |
132 |
||
|
40WSY-50 |
b 型 |
6.48 |
1.80 |
50 |
2900 |
7.5 |
144 |
|
|
40FSY-35 |
10 |
2.8 |
34 |
2900 |
4 |
162 |
||
|
50FSY*35 |
30 |
8.3 |
35 |
2900 |
7.5 |
182 |
||
|
50FSY-35A |
25 |
7.0 |
26 |
2900 |
5.5 |
168 |
||
|
50FSY-20 |
18 |
5.0 |
20 |
2900 |
4 |
150 |
||
|
80FSY-35 |
56 |
15.5 |
35 |
2900 |
15 |
184 |
||
|
80FSY-35A |
45 |
12.5 |
26 |
2900 |
11 |
163 |
||
结构图纸
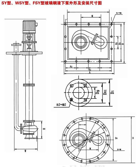
安装尺寸

|
型 号 |
W |
M |
H |
D |
DO |
n-m |
Dg |
D1 |
DO1 |
n2-m2 |
|
SY40×32-20 |
340 |
205 |
200 |
450 |
400 |
8-F16 |
40 |
145 |
110 |
4-F18 |
|
SY50×40-20 |
340 |
205 |
210 |
450 |
400 |
8-F16 |
40 |
145 |
110 |
4-F18 |
|
SY65×50-20 |
370 |
205 |
220 |
450 |
400 |
8-F16 |
50 |
160 |
125 |
4-F18 |
|
25WSY-22 |
330 |
205 |
200 |
450 |
400 |
8-F16 |
25 |
110 |
85 |
4-F14 |
|
25WSY-30 |
330 |
205 |
200 |
450 |
400 |
8-F16 |
25 |
110 |
85 |
4-F14 |
|
40WSY-25 |
340 |
205 |
200 |
450 |
400 |
8-F16 |
40 |
145 |
110 |
4-F18 |
|
40FSY-22 |
340 |
205 |
200 |
450 |
400 |
8-F16 |
40 |
145 |
110 |
4-F18 |
|
40FSY-18 |
340 |
205 |
200 |
450 |
400 |
8-F16 |
40 |
145 |
110 |
4-F18 |
|
40WSY-50 |
410 |
330 |
230 |
600 |
550 |
8-F18 |
32 |
140 |
100 |
4-F18 |
|
50FSY-35 |
370 |
205 |
220 |
450 |
400 |
8-F16 |
50 |
160 |
125 |
4-F18 |
|
40FSY-35 |
340 |
205 |
220 |
450 |
400 |
8-F16 |
50 |
160 |
125 |
4-F18 |
|
50FSY-20 |
340 |
205 |
210 |
450 |
400 |
8-F16 |
40 |
145 |
110 |
4-F18 |
|
80FSY-35 |
500 |
330 |
250 |
600 |
550 |
8-F18 |
65 |
180 |
145 |
4-F18 |
|
80FSY-35 |
500 |
330 |
250 |
600 |
550 |
8-F18 |
80 |
190 |
160 |
4-F18 |
型号定义






