产品概述
| S型型系列玻璃钢泵,其接触液体的过流部件均采用聚乙烯醇缩丁醛、改性酚醛玻璃纤维材料经高温模压而成,具有良好的耐腐蚀,耐温性能高、重量轻、比强度高、不变形等。轴封采用普通型和耐颗粒型机封二种(液下泵不用机械密封)结构合理,消耗功率少。 |
| 产品用途 |
|
本泵主要用于石化、冶炼、染料、印染、农药、制药、稀土、皮革等行业,输送不含固体颗粒、不易结晶、温度不高于100℃的各种非氧化性酸(盐酸、稀硫酸、甲酸、醋酸、丁酸)等腐蚀介质必不可少的理想设备。 |
性能参数
|
型号 |
流量 |
扬程 |
转速 |
效率 |
汽蚀余量 |
电机功率 |
|
S25×25-12.5 |
3.2 |
12.5 |
2900 |
41 |
3 |
0.55/0.75 |
|
S40×32-20 |
6.3 |
20 |
2900 |
50 |
3 |
1.1/1.5 |
|
S40×32-32 |
6.3 |
32 |
2900 |
45 |
3 |
2.2/3 |
|
S50×40-20 |
12.5 |
20 |
2900 |
53 |
3 |
2.2/3 |
|
S50×32-32 |
12.5 |
32 |
2900 |
51 |
3 |
4.0/5.5 |
|
S65×50-20 |
25 |
20 |
2900 |
64 |
3 |
3.0/4 |
|
S65×50-25 |
25 |
25 |
2900 |
61 |
3 |
3.0/4 |
|
S65×50-32 |
25 |
32 |
2900 |
60 |
3 |
5.5/7.5 |
|
S80×55-32 |
50 |
32 |
2900 |
69 |
4 |
7.5/11 |
|
S100×80-50 |
100 |
50 |
2900 |
73 |
5 |
22/30 |
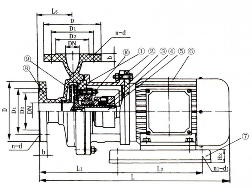
结构图纸
安装尺寸
型号定义





